Wettbewerbe:Sanierung und energetische Ertüchtigung Hochhaus am Sonnenbühl
Realisierung Wettbewerbserfolg
Baldauf Prill Lutz | Architekten | PartGmbB

Bauherr
Seezeit Studentenwerk Bodensee



Jahr
2008



Standort
Sonnenbühl, Konstanz



Leistungsphasen / Bauvolumen
1 - 2 / 2.200.000 ¤



Fotograf





Bilder

Pläne

Projektbeschreibung

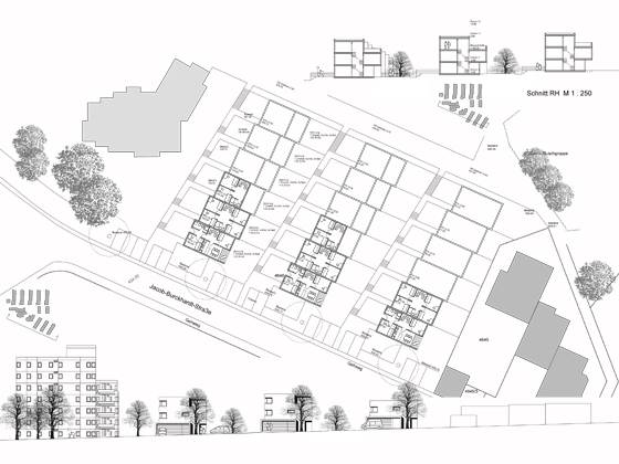
Sonnenbühl Ost - Lageplan
Sonnenbühl Ost - Lageplan
Sonnenbühl Ost - Grundriss Ebene -0
Sonnenbühl Ost - Grundriss Ebene -0
Sonnenbühl Ost - Grundriss Ebene -1
Sonnenbühl Ost - Grundriss Ebene -1
Sonnenbühl Ost - Grundriss Ebene -2
Sonnenbühl Ost - Grundriss Ebene -2
Sonnenbühl Ost - Grundriss Ebene -3
Sonnenbühl Ost - Grundriss Ebene -3
Sonnenbühl Ost - Hochhaus 1-7 - Ansichten Schnitte
Sonnenbühl Ost - Hochhaus 1-7 - Ansichten Schnitte
Sonnenbühl Ost - Lageplan - Hochhaus EG
Sonnenbühl Ost - Lageplan - Hochhaus EG
Sonnenbühl Ost - Lageplan - Hochhaus UG
Sonnenbühl Ost - Lageplan - Hochhaus UG
Sonnenbühl Ost - Ansicht und Schnitt
Sonnenbühl Ost - Ansicht und Schnitt
Sonnenbühl Ost - Schnitte
Sonnenbühl Ost - Schnitte