Wettbewerbe:"Alter Meßplatz", Freiburg Baldauf Prill Lutz | Architekten | PartGmbB

Bauherr




Jahr
2001



Standort




Leistungsphasen / Bauvolumen




Fotograf





Bilder

Pläne

Projektbeschreibung

Freiburg - Strukturplan
Freiburg - Strukturplan
Freiburg - Lageplan
Freiburg - Lageplan
Freiburg - Grundriss Erdgeschoss
Freiburg - Grundriss Erdgeschoss
Freiburg - Wohnungsgrundriss 1.OG
Freiburg - Wohnungsgrundriss 1.OG
Freiburg - Grundriss 1. und 2. OG
Freiburg - Grundriss 1. und 2. OG
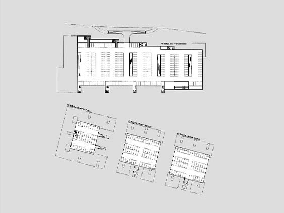
Freiburg - Grundriss UG und OG
Freiburg - Grundriss UG und OG
Freiburg - Längs- und Querschnitt Warenhaus
Freiburg - Längs- und Querschnitt Warenhaus
Freiburg - Längsschnitte Schützenallee
Freiburg - Längsschnitte Schützenallee
Freiburg - Ansichten
Freiburg - Ansichten
Freiburg - Ansichten
Freiburg - Ansichten